合肥市产权交易中心受合肥市安居控股集团股份有限公司委托,对桐华里1#楼招商(酒店业态)项目(项目编号:2025HCFCA00788)进行招商。欢迎符合条件的意向方参与。
招商公告时间:2025年6月28日9:00始至2025年7月20日17:00止。
递交材料时间:2025年7月21日10:00—10:30(逾期不予接收)
招商评审时间:2025年7月21日10:30
一、标的基本信息
1.坐落位置:桐华里1号楼位于包河区桐城南路以西,龙川路以南。
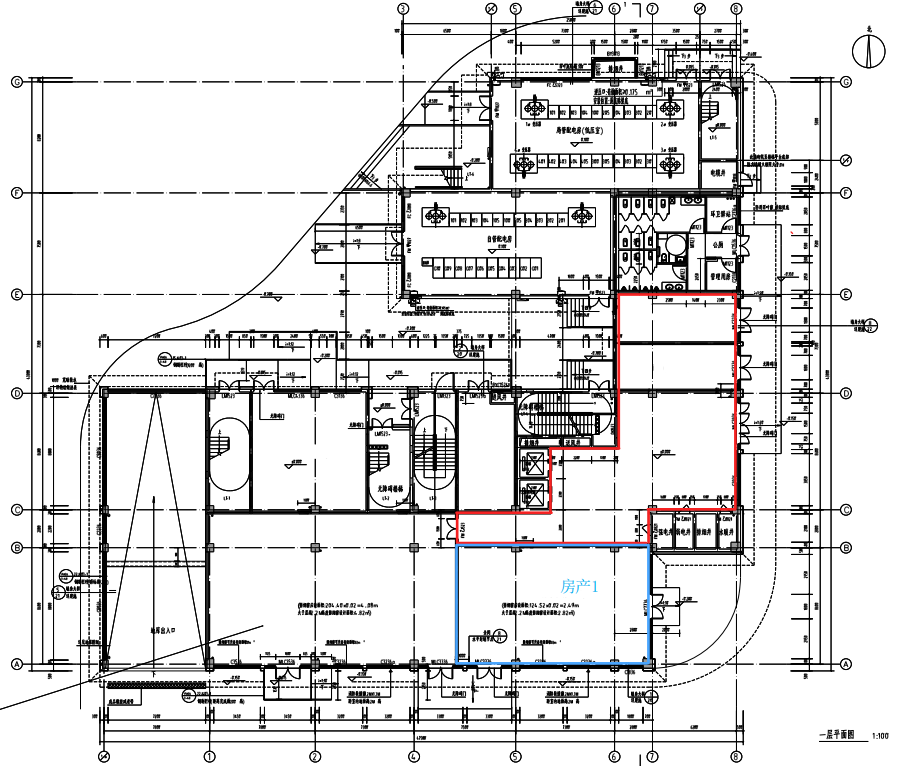
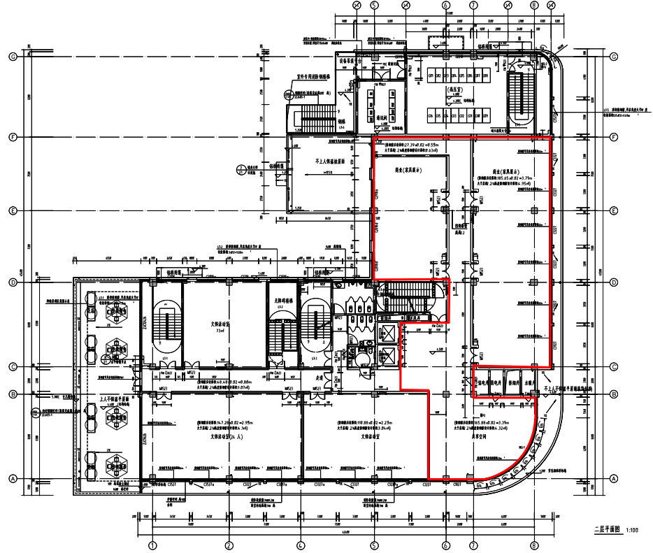
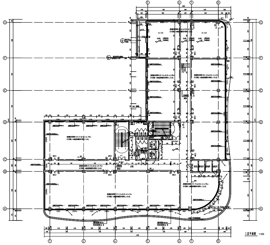
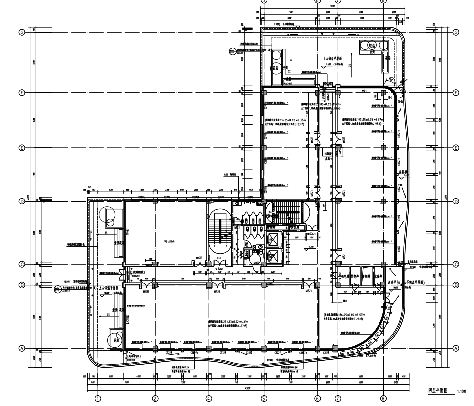
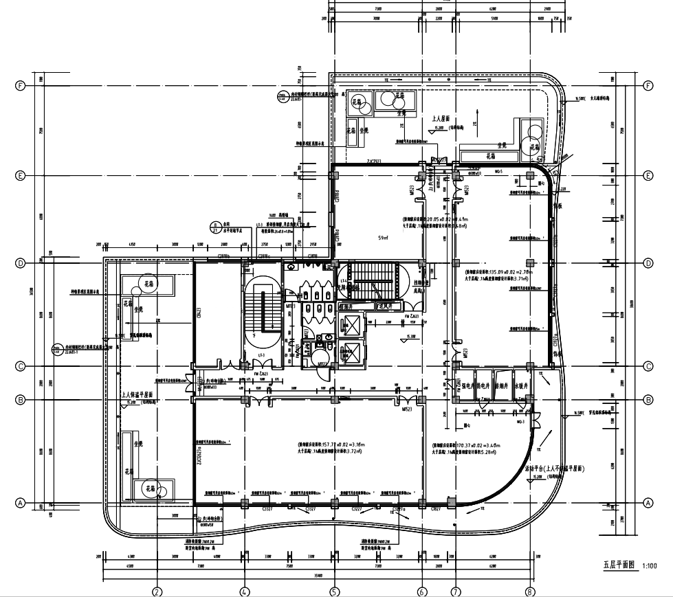
2.标的情况:该标的有不动产权证书(大证未分割),标的无权属纠纷,委托方将提供该处标的的权属证明或租赁证明,方便成交人办理相关证照。招商标的共计五层,建筑面积约3900m²,本次招商范围分两个部分,分别为:
(1)主体部分:桐华里1号楼一至五层,其中一二层为红框范围内,三至五层为整层;
(2)房产1:位于标的一层蓝框处房产1,面积约131.47m²,为本项目可选招商区域。
下图分别为一至五层平面示意图,仅供参考,不作为最终使用面积的确定依据。因一、二层有其他使用性质房产,成交人成交后不得妨碍其他性质房产的正常使用和进出通道。
一层平面图中蓝框区域内房产1为定额租金招商。意向方报名时需明确表明是否选择房产1。若意向方最终承租房产1,需就该房产另行签订租赁合同。





3.标的用途:仅限经营酒店。成交人不得拆分,独立经营其他业态或转租。运营期间,成交人禁止使用罐装燃气、存放和使用易燃易爆或有毒有害物品,不得从事违法项目。成交人使用上述标的必须符合标的资产设计用途及《合肥市市场主体住所(经营场所)登记管理暂行规定》《合肥市服务业环境保护管理办法》等相关法律法规要求。成交人须严格执行招商单位对房屋用途的要求,不得改变经营用途。未经招商单位同意,成交人不得擅自改变项目经营品牌,否则招商单位有权责令成交人停业整改,若成交人未按招商单位要求及时整改的,招商单位有权终止合同。
4.招商底价
主体部分:100.32万元/年。招商底价不含标的一层房产1定额首年租金,房产1定额首年租金标准详见第10条,本次招商意向方仅对主体部分报价,报价不得低于招商底价,否则报价无效。
5.招商期限:10年。
6.租金支付:租金每3个月支付一次,先支付后使用。合同期内租金有递增,第一、二、三年每年租金均为成交价,第四、五、六年每年租金均在第三年的基础上递增5%,第七、八、九年每年租金均在第六年的基础上递增5%,第十年的租金在第九年的基础上递增5%。
7.免租期:本项目给予免租期共计120天,分别于合同期第三、第四、第五、第六个合同年的首月给予连续30天的免租期,免租期具体时间以合同约定为准。
若成交人在合同期内发生合同约定的违约行为,招商单位有权采取下列措施:
(1)取消尚未享受的免租期;
(2)招商单位保留通过司法途径追偿成交人已享受的免租期内的全额租金的权利。
8.履约保证金:本项目履约保证金金额为成交后首年三个月租金总和,成交人应在《成交确认书》发出之日起10日内(合同签订前)向招商单位提交履约保证金。合同终止且无成交人责任后履约保证金无息退还。
9.物业管理费(仅为物业管理费,不含停车及其他费用)
(1)主体部分:16.38万元/年。
(2)房产1:5522元/年。
10.关于房产1的特殊要求:
(1)在主体部分招商底价基础上额外收取的租金:房产1首年租金为10.57万元/年。
(2)费用支付:租金每3个月支付一次,先支付后使用。合同期内房产1租金有递增。第一、二、三年每年租金均为首年租金,第四、五、六年每年租金均在第三年的基础上递增5%,第七、八、九年每年租金均在第六年的基础上递增5%,第十年的租金在第九年的基础上递增5%。成交人按照上述租金和物业管理费用标准交纳房产1的费用。
(3)免租期:房产1给予免租期30天,于合同期第四个合同年的首月给予连续30天的免租期,免租期具体时间以合同约定为准。
11.其它未尽事宜应由意向方主动向招商单位咨询了解。
二、招商条件
(一)资格条件
1.意向方须为依法设立的境内企事业法人或其他组织;
2.意向方须为酒店品牌持有方或具有酒店品牌持有方提供的加盟合作意向或授权材料;
3.意向方提供自2024年1月1日(含)以来的连续一年依法为员工缴纳社保的相关证明(员工人数不限);
4.意向方提供2024年度依法缴纳税收的完税证明或纳税信用无不良记录的证明;
5.意向方未被列入信用中国网站失信被执行人名单;
6.意向方承诺:成交后实际项目运营公司须为意向方主体或意向方全资子公司;
7.本项目不接受自然人、个体工商户或联合体参与。
(二)其它要求
1.标的资产内设施设备、水电、消防等按现状交付,室内水电布线及水电负荷不足由成交人自行增容。招商单位提供的图纸仅作参考,不作为使用面积及费用确定的依据。意向方应提前踏勘标的资产,就资产相关情况主动向招商单位咨询,自行了解可能涉及的相关法律法规及市政规定;确认标的范围、面积、水电、使用性质、消防条件并认可招商要求等;详细阅读并理解本招商公告及所有附件的相关内容,完全接受并遵循其中的要求、条款和条件,充分了解标的情况。凡参与招商或提交评审材料的意向方都视同已实地踏勘,对标的资产的位置、边界、用途、设施设备、水电条件、使用性质、面积及现状等有了全面而准确的了解,自愿承担因上述原因导致的一切后果和法律责任。
2.未经招商单位书面同意,成交人在合同履约期限内,不得转租。
3.合同期内,成交人负责标的资产的日常安全管理工作并承担标的资产发生的水、电、燃气、通讯(网络)、垃圾清运(注:包括但不限于生活垃圾、厨余垃圾、酒店一次性消耗品等废弃物,均由成交人自行负责处理)、物业管理、停车等相关费用。
4.标的资产配备的地上车位成交人可免费使用(仅限标的南侧19个车位),地下车位按物业公司公示收费标准的5折收取。
5.标的资产之外的建筑物、附属建筑物(如道路、绿化、空地、停车场等)均不在招商范围内,招商单位不提供任何承诺及服务。
6.成交人实际经营品牌与承诺经营品牌不一致的,招商单位有权取消成交资格、解除合同并且不承担任何责任。
7.桐华里1#楼二次装修按相关部门规定需满足绿色建筑二星级要求。具体如下:
(1)墙面、地面、顶棚粉刷或铺贴,装饰材料需要满足E1环保等级;
(2)房间开关、灯具、网络接口安装完成;
(3)卫浴洁具安装完成,并需要采购2级水效的水龙头、马桶;
(4)电表安装需要使用远传电表满足能耗监测系统的要求。
根据《建设工程质量管理条例》等法律法规,成交人装修改造前,需将装修相关图纸提交至原设计院及招商单位审核确认后(设计院复核装修图纸将收取相关服务费用,该费用暂定按5元/平方米收取,最终金额根据设计院实际发生的复核工作量据实结算。意向成交人应自行提前向设计院咨询了解具体费用详情,费用最高不超过人民币19500元。意向方报名参与本项目招商,即视为已完全知悉上述费用安排且无异议。设计院咨询:13965089377宋院长),再经第三方(即住建及消防等部门)审核。所有部门审核通过并办理相关施工许可手续后,方可开始装修施工。装修施工时间需严格遵守相关管理规定。
8.合同期内,成交人因经营需要对标的资产进行装饰装修的,所需全部费用由成交人承担。标的资产进行装饰装修前须以书面形式征得招商单位同意。成交人装修过程中应确保不会破坏房屋主体结构并不得破坏或改变招商单位与相邻产权人的产权界限,否则所造成的损失和引起的纠纷责任全部由成交人承担。招商单位有权监督装饰装修施工过程,并有权提出必要的整改意见。
9.成交人须于《成交确认书》发出之日起30日内与招商单位签订合同。若期满未履行上述义务,视为成交人自动放弃成交资格,招商单位有权单方取消其成交资格,且已收取的交易保证金不予退还。同时招商单位可直接按招商评审得分排序顺延通知第二名候选人签约(无需重新评审);若顺延候选人放弃资格,则重新启动招商程序,成交人不得对此提出任何异议。
10.其它未尽事宜详见合同(见附件一)
三、交易方式
合肥市产权交易中心受招商单位委托组建项目评审小组。评审小组根据招商公告对报名意向方进行资格评审,通过资格评审的报名意向方被确定为合格意向方,再由评审小组根据评分办法推选成交人。评审结束后,合肥市产权交易中心将发布招商成交公告,确定项目成交人。
四、参与方式
(一)交易保证金
1.交纳时间:2025年7月20日17:00前
2.保证金金额:贰佰万元整
3.收款账户信息:
户名:合肥市产权交易中心;
开户银行:中国光大银行合肥阜南路支行;
账号:76700188016079835
注意:交易保证金交纳人名称与意向方名称应当一致,未按要求提交交易保证金的,评审不通过。
(二)成交服务费收取
首年成交金额在90万元(不含)以下的,成交服务费按第一年实际月租金的20%的标准收取;首年成交金额在90万元(含)到120万元(不含)之间的,成交服务费定额收取15000元;首年成交金额120万元(含)以上的,成交服务费定额收取20000元。单个项目成交服务费不低于1000元。
(三)制作评审材料
意向方需对照本项目公告评分办法(见附件二),制作评审材料,参考格式见评审材料格式(附件三)。
1.数量:意向方须提交一式三份评审材料,其中正本一份,副本二份(正本和副本如有差异,以正本为准)。
2.签署:评审材料的正本和副本须加盖意向方公章。每份评审材料的封面注明“正本”或“副本”字样。
3.封装:评审材料密封包装。
4.标记:包装上封面标注“某项目评审材料”字样并清楚标明意向方的名称及联系方式,同时加盖单位公章。
(四)提交评审材料
意向方需在指定时间内,将评审材料封装并提交至合肥市滨湖新区徽州大道4872号金融港中心A9幢安徽公共资源交易集团一楼多功能室(开标室)
注意:1.在本公告要求提交评审材料的截止时间之后送达或未封装的评审材料,合肥市产权交易中心将拒绝接收。
2.意向方在递交评审材料后,可在规定送达截止时间前以书面形式撤回。在送达截止时间后,意向方不得再要求撤回评审材料。
五、联系方式
(一)招商单位:合肥市安居控股集团股份有限公司
联系人:黄工,联系电话:0551-62988626、19955152303
联系地址:安徽省合肥市蜀山区长江西路460号
(二)交易机构:合肥市产权交易中心
联系人:王工,联系电话:0551-66223192、66223918
联系地址:合肥市滨湖新区徽州大道4872号金融港中心A9幢
桐华里1#楼招商(酒店业态)项目结果公告
项目编号:2025HCFCA00788
合肥市产权交易中心受合肥市安居控股集团股份有限公司委托,于2025年6月28日发布公告,对桐华里1#楼招商(酒店业态)项目进行公开交易,7月21日确定了成交人。现将具体情况公告如下:
交易标的:桐华里1#楼招商(酒店业态)
成交人:安徽尚怡酒店管理有限公司
成交金额:首年101万元
项目负责人:王工
联系电话:0551-66223192
特此公告。
合肥市产权交易中心
2025年7月21日