一、金融小镇概况
合肥滨湖金融小镇是兴泰控股主发起投资建设的金融产业集聚区,位列安徽省首批省级特色小镇,也是全省唯一金融类特色小镇,2023年在安徽省首批省级特色小镇创建期满评估中获评“优秀”等次。金融小镇规划总面积3.5平方公里,核心区1.5平方公里,一期项目土地约163亩,为启动区A、B地块。A地块“金融云台”占地面积47亩,建筑面积5.5万㎡,定位于小镇“联结之核”,是金融小镇对外展示的窗口,已于2020年8月投入使用。B地块“金融链街”占地面积116亩,建筑面积12.6万㎡,定位于小镇“驱动之核”,于2023年9月由中国农业发展银行整体购置,建设总行级金融科技中心。
二、基础配套
园区配套:园区配有金融小镇“小镇客厅”,作为安徽省金融局重点支持的2家“全省创投风投国际客厅”之一,设有企业展厅、全球路演大厅,打造集展览、会议、交流为一体的综合服务中心。革命金融与金融科技展,安徽省首个金融文化主题展,由金融博物馆与兴泰控股联合主办,展厅面积共计1750㎡,打造“安徽红色金融打卡地”“金融文化 交流会客厅”。合家福超市,进一步便利园区职工,提升办公生活品质。员工健身房,配有乒乓球室、瑜伽室、跑步机、健身器材等,为园区员工提供便捷的健身空间。员工食堂,为员工提供舒适整洁的就餐环境,确保员工吃得健康、吃得安全。园区咖啡厅,除了香浓咖啡与创意美食,还为园区员工提供科技阅读会、产业交流会、手工DIY等活动。接驳巴士,自花园大道地铁站至省体院公交站至滨湖金融小镇,解决员工上班最后一公里难题。共享单车,提升园区入驻企业员工出行便捷度和幸福感。

合肥滨湖金融小镇,合肥市包河区黑龙江路8号
三、资产概况
|
位置 |
面积 |
房型 |
租金 |
租期 |
|
A栋4层 |
1225.03㎡ |
独立房间5间,房间面积主要为50-80 ㎡,包括2个会议室,其余区域为开放式办公空间。 |
35元/㎡/月,需整租;精装带家具 |
1年起, 优惠政策面议 |
|
A栋5层 |
1017.91㎡ |
独立房间6间,房间面积主要为 50-80 ㎡,包括2个会议室,其余区域为开放式办公空间。 |
35元/㎡/月,需整租;精装带家具 |
|
|
B栋2层 |
980.05㎡ |
独立房间8间,房间面积主要为80㎡-130㎡。 |
22元/㎡/月,可整租、零赁;公区精装,部分带家具 |
|
|
B栋4层 |
1249.69㎡ |
独立房间10间,房间面积主要为80㎡-140㎡。 |
22元/㎡/月,可整租、零赁;公区精装,部分带家具 |
|
|
D栋1层 |
1365.69㎡ |
独立房间10间,房间面积主要为110㎡-140㎡,有少量房间面积约200㎡ |
30元/㎡/月,可整租、零赁;精装不带家具 |
咨询电话:刘经理 0551-64366606
张经理0551-66892309
四、招租企业类型
A地块云台中心招租对象需为金融类、投资类或科技类企业以及相关专业服务机构和配套企业等,承租人在租赁合同履约期限内,不得转租。具体招租企业类型如下:
1.金融类:银行、证券、保险、信托等金融机构,以及融资担保、融资租赁等地方金融组织等。
2.投资类:私募基金、私募基金管理人、风险投资/天使投资机构等。
3.科技类:区块链技术、支付结算、大数据风控、AI金融应用、智能投顾等金融科技企业和以技术创新为核心驱动力,通过研发投入、知识产权积累和科技成果转化,从事高新技术产品研发或服务的科技型企业。
4.专业服务类:会计师事务所、律师事务所、税务师事务所、信用评级机构、资产评估公司、金融咨询公司等。
5.配套类:餐饮、商业、酒店、会展、培训、商务服务、人力资源、政策申报等。
6.其他:经滨湖金融小镇认定对小镇发展有引领带动作用、有助于完善产业生态的企事业单位、公共服务平台、商协会组织等。
欢迎广大投资人垂询详情!
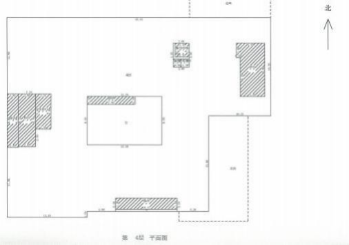
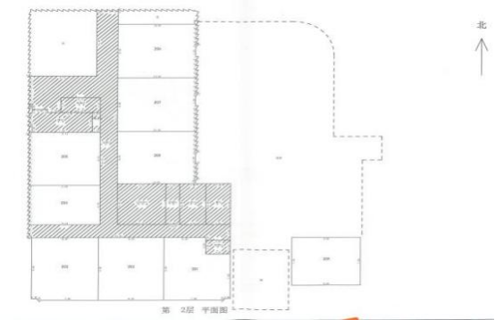
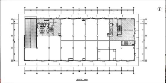
附件 1:户型图
A 栋

4 层平面布局图

5 层平面布局图
B栋

2层平面布局图

4层平面布局图
D栋

附件 2:配套图示
园区配套

小镇客厅

革命金融与金融科技展

报告厅

会议室

共享单车

接驳巴士

合家福超市

园区食堂